獲獎情況:全國優秀工程設計金獎(2005年)、中國建筑學會建筑創作大獎(2009)、中國建筑學會優秀建筑創作獎(2006)、建筑部優秀工程建筑設計一等獎(2004年)、北京市第十一屆優秀工程建筑設計一等獎(2004)、國家魯班獎、第六屆首都建筑設計匯報展建筑創作二等獎及十佳建筑獎。
中國國家科學圖書館創作中,在功能性與前瞻性并重、傳統文化與現代技術相融的基礎上,傳承科學院的場所精神,強調高科技文化品質,體現開放的圖書館的公眾性,表現國家級圖書館的莊嚴和氣勢。
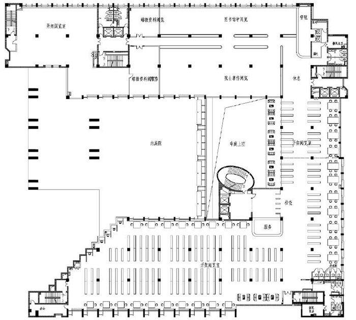
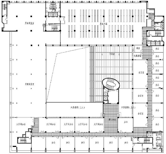
建筑整體圍繞著一個向西南開放的內院展開,內院的邏輯源于對傳統四合院背后意義的新解釋,它帶給建筑能量:陽光、空氣、景觀,這便是方案所追求的新模式:集中式的便捷,分散式的環境優雅,被融匯在一個理性的平面中,從而確保閱覽空間的采光通風。
進入圖書館的序列被有意設計成閱覽建筑的過程,在此復辟了中國傳統空間的敘述性,使“走建筑”、“讀建筑”成為可能,一系列重要事件的連續發生猶如傳統空間序列,其中內院正對的廟宇已成為知識的殿堂,而這一過程并沒有神的意味,更多的是開放的圖書館顯示的文化品質。







上一頁:北京大學公共教室樓(北大二教)/北京別處空間建筑設計事務所
2018-07-07
下一頁:北京席殊書屋 / 張永和
2018-07-04